What is a 1K apartment? Understanding size, layout, and who it’s best for

Home > What is a 1K apartment? Understanding size, layout, and who it’s best for
What is a 1K apartment? Understanding size, layout, and who it’s best for
Arjun Mehta Dec 1 2025 0

Melbourne 1K Apartment Rental Calculator

Find Your Ideal Apartment

Estimate weekly rent based on Melbourne's 2025 market data

Estimated Weekly Rent

Your in will cost

Based on Melbourne 2025 rental data for sqm

When you see a listing for a 1K apartment, it might look like a typo. Is it a typo? No. It’s a common shorthand used in real estate listings, especially in places like Australia, the US, and parts of Asia. A 1K apartment means one bedroom and one kitchen. No living room. No separate dining area. Just a bedroom and a kitchen-sometimes with a tiny space in between that doubles as a living area.

It’s not the same as a studio. A studio usually has one open space for sleeping, living, and cooking. A 1K has a door separating the bedroom from the kitchen. That’s the key difference. The bedroom is enclosed. The kitchen is its own room. Everything else-eating, watching TV, working-is done in the remaining space, which is often just a small open area.

Why does this matter? Because if you’re looking for a place to live in Melbourne and you’re on a tight budget, a 1K might be your only realistic option. These units are common in older buildings, converted warehouses, or new developments targeting young professionals, students, or single people who don’t need much space.

What’s inside a 1K apartment?

Let’s break it down. A typical 1K apartment in Melbourne is between 30 and 45 square meters. That’s about the size of a small parking space plus a walk-in closet. Here’s what you’ll usually find:

  • One enclosed bedroom (around 8-10 sqm)
  • One kitchen (5-7 sqm), often with a small counter and basic appliances
  • One bathroom (3-4 sqm), sometimes with a shower only
  • One combined living/dining area (15-25 sqm), open to the kitchen

There’s no hallway. No closet in the bedroom. Storage is minimal. Many 1Ks have built-in shelving, under-bed drawers, or wall-mounted cabinets because there’s nowhere else to put things. You’ll need to be organized-or you’ll feel cramped fast.

Some newer 1Ks come with a small balcony or shared courtyard. That’s a bonus. It gives you a bit of outdoor space without needing a full-sized unit. In cities like Melbourne, where outdoor living matters, even a 2m x 1m balcony can make a big difference.

1K vs 1BHK vs studio: What’s the difference?

You’ve probably seen listings for 1BHK (one bedroom, one hall, one kitchen) or studios. Here’s how they stack up:

Comparison of 1K, 1BHK, and Studio Apartments
Feature 1K Apartment 1BHK Apartment Studio Apartment
Bedroom Enclosed Enclosed Open (no walls)
Kitchen Separate room Separate room Corner or alcove within main space
Living area Open space next to kitchen Separate hall/living room Combined with bedroom and kitchen
Size range 30-45 sqm 45-65 sqm 25-40 sqm
Rent (Melbourne, 2025) $450-$650/week $600-$850/week $400-$600/week

So if you want privacy for sleeping and don’t mind cooking in a tiny kitchen, a 1K gives you more separation than a studio. But if you want a proper living room to entertain guests, a 1BHK is better-even if it costs more.

Who is a 1K apartment actually for?

Not everyone can live in a 1K. But for the right person, it’s perfect.

Students-especially those on short-term leases or internships-often choose 1Ks because they’re cheap, easy to move into, and close to campuses. You don’t need a big space if you’re only home to sleep and study.

Young professionals who work long hours might prefer a 1K because they’re rarely home. They spend evenings out, at the gym, or on public transport. For them, a quiet bedroom and a place to heat up food is enough.

People downsizing-like retirees after their kids leave home-sometimes move into 1Ks to reduce maintenance, lower bills, and simplify life. Less space means less cleaning, less clutter, less stress.

It’s not ideal for couples unless both people are super tidy and don’t mind sharing every inch. It’s also not good for anyone who likes to cook often, entertain guests, or has a lot of stuff. If you own more than 50 books, a full set of cookware, or a decent-sized wardrobe, you’ll need to get creative with storage.

Young professional working at a wall desk in a minimalist 1K apartment, with bed visible behind a curtain and kitchen nearby.

Pros and cons of living in a 1K

Let’s be real. No apartment is perfect. Here’s what you gain-and what you give up.

Pros

  • Lower rent-often 20-30% cheaper than a 1BHK in the same area.
  • Lower bills-heating, cooling, and electricity cost less in a smaller space.
  • Easy to clean-you can vacuum and wipe down everything in under an hour.
  • High availability-many older buildings have 1Ks, so you’ll find more options than you think.
  • Prime locations-because they’re small, they’re often in central suburbs like Carlton, Fitzroy, or South Melbourne, where bigger units are rare or expensive.

Cons

  • No privacy-if someone visits, they’ll see your bedroom. There’s no buffer zone.
  • Limited storage-you’ll need to use vertical space, under-bed bins, or offsite storage.
  • Smell and noise transfer-cooking odors can linger in the bedroom if ventilation is poor.
  • Hard to entertain-you can’t host dinner parties. Even two guests can feel crowded.
  • Resale or rental value is low-if you ever want to sell or upgrade, 1Ks are harder to rent out or sell quickly.

How to make a 1K apartment feel bigger

Living in a small space doesn’t mean living in misery. Here’s how people make 1Ks work:

  • Use mirrors-a large mirror on one wall makes the room feel twice as big.
  • Choose light colors-white, beige, or soft gray walls reflect light and reduce the feeling of being boxed in.
  • Multi-functional furniture-a sofa bed, fold-out table, or wall-mounted desk saves space.
  • Install floating shelves-they keep the floor clear and give you storage without taking up room.
  • Use vertical space-tall bookshelves, hanging pots, or ceiling hooks for bikes or bags.
  • Declutter relentlessly-if you haven’t used it in six months, get rid of it. Storage is your enemy if you don’t control it.

One person I know turned their 1K in Richmond into a cozy retreat by using a sliding door to separate the bedroom from the kitchen. It made the space feel more private without needing a wall. Another uses a curtain instead of a door-it’s cheaper and easier to install.

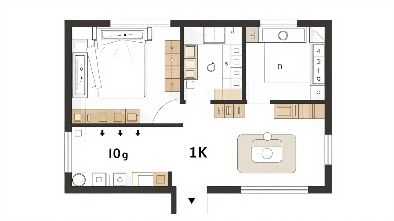
Overhead layout of a 35 sqm 1K apartment showing bedroom, kitchen, and living space with storage solutions marked.

Where to find 1K apartments in Melbourne

They’re not always labeled as “1K.” You’ll need to search smartly. Try these filters on real estate sites:

  • Search for “studio” or “one bedroom” and read the description carefully.
  • Look for keywords like “compact,” “efficient layout,” “no living room,” or “kitchen separate.”
  • Check older buildings-pre-1990s apartments often have 1Ks as standard.
  • Look in suburbs like Collingwood, Prahran, Footscray, and Port Melbourne-these areas have lots of converted warehouses and small units.
  • Use filters for “under $600/week” on Domain or Realestate.com.au.

Some property managers list them as “1BR” (one bedroom) but describe the layout as “kitchenette and bedroom only.” That’s your 1K.

Final thoughts: Is a 1K right for you?

A 1K apartment isn’t a compromise-it’s a lifestyle choice. It’s for people who value location over space, simplicity over stuff, and affordability over luxury. If you’re someone who spends most of your time outside the home, doesn’t mind minimalism, and wants to live in the city without breaking the bank, a 1K could be your best option.

But if you love hosting, collecting things, or need room to spread out, keep looking. There’s no shame in wanting more space. The right home isn’t about size-it’s about fit.

Is a 1K apartment the same as a studio?

No. A studio has one open space for sleeping, living, and cooking. A 1K apartment has a separate, enclosed bedroom and a separate kitchen. The rest of the space is open and used for living and dining. The key difference is privacy in the bedroom.

Can two people live in a 1K apartment?

It’s possible, but not ideal. Two people can live in a 1K if they’re very tidy, have similar schedules, and don’t mind sharing every inch. Most couples find it too cramped for long-term living. It works better for short-term arrangements like students or interns.

Are 1K apartments legal in Melbourne?

Yes. As long as the unit meets minimum size and safety standards set by the Victorian Building Authority, a 1K apartment is perfectly legal. Most are in older buildings that were built before modern space regulations. Newer developments must meet minimum 30 sqm for a one-bedroom unit, which a 1K easily satisfies.

How much does a 1K apartment cost in Melbourne?

As of late 2025, a 1K apartment in Melbourne typically rents for $450 to $650 per week. Prices vary by suburb-central areas like Carlton or South Melbourne are on the higher end, while outer suburbs like Footscray or Coburg are more affordable. Buying a 1K unit can cost between $400,000 and $600,000 depending on location and condition.

Do 1K apartments have good natural light?

It depends on the building. Many 1Ks are in older brick buildings with small windows, so natural light can be limited. Newer 1Ks, especially those in converted warehouses or high-rises, often have floor-to-ceiling windows. If light matters to you, always visit during the day and check which direction the windows face-north-facing gets the most sun in Melbourne.

Can I convert a studio into a 1K?

Technically yes, but it’s not easy. You’d need to build a wall to separate the sleeping area from the kitchen, install a door, and ensure ventilation and safety codes are met. Most landlords won’t allow it without approval. In rental units, it’s usually not permitted. In owned units, it’s possible but expensive and may require council permits.

Tags:
Image

Arjun Mehta

I work in the real estate industry, specializing in property sales and rentals across India. I am passionate about writing informative and engaging articles on the various aspects of the Indian property market. My goal is to help buyers, sellers, and renters make well-informed decisions. In my free time, I enjoy exploring new trends in real estate and translating them into easy-to-read content. I strive to offer insights that can demystify the complexities of real estate dealings for my readers.